Overview
- Updated On:
- September 22, 2022
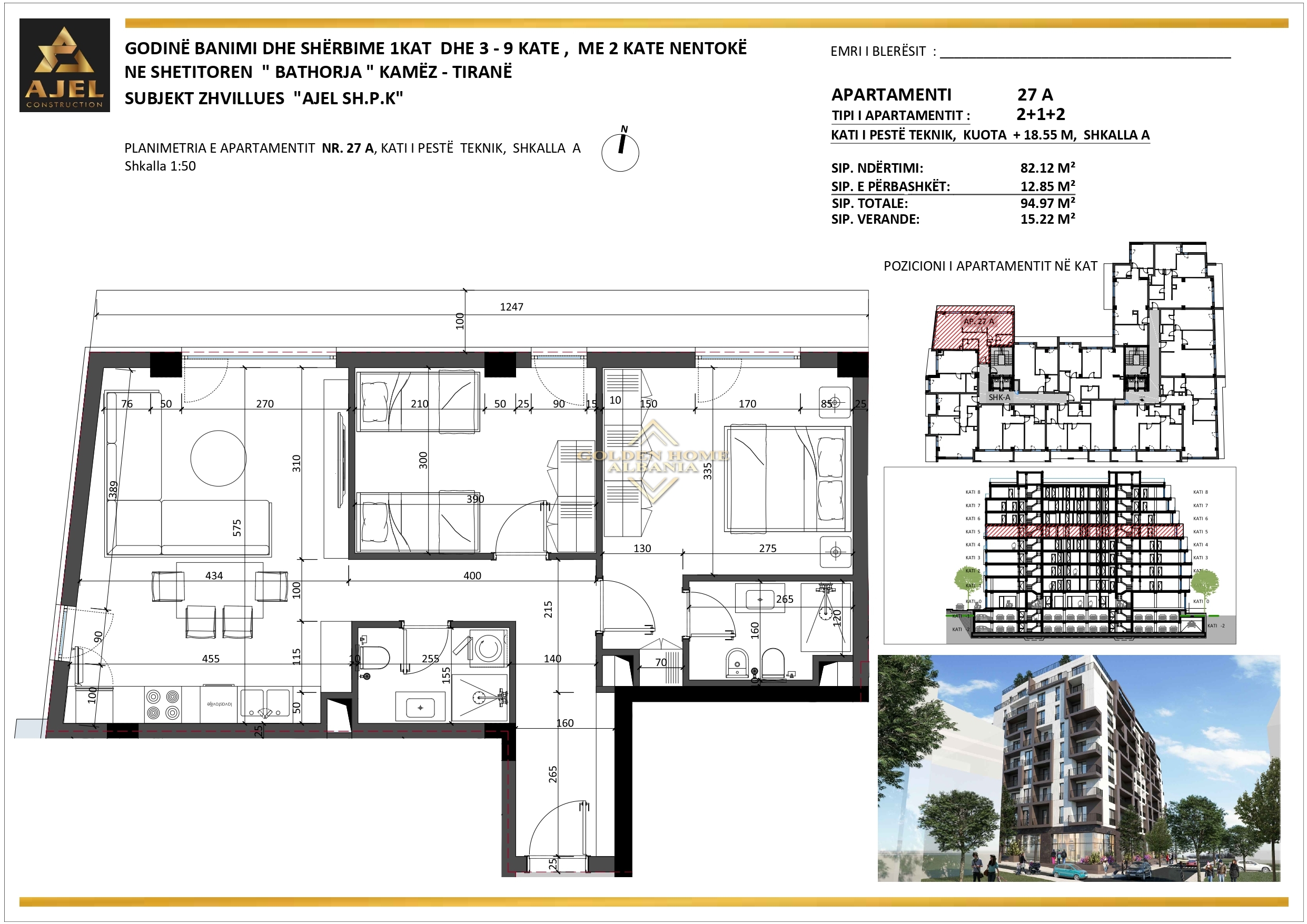
- 2 Dhoma
- 2 Tualete
- 110.19 m2
Pershkrimi
Ekskluzive! Shitet apartament 2+1+2 tek Ajel Residence, prane Institutit, Rruga Demokracia, Kamez! Apartamenti ka siperfaqe 110.19m² ku 94.97m² eshte apartament & 15.22m² verande. Prona organizohet ne nje sallon te bollshem sebashku me ambientin e gatimit me dalje ne ballkon, dy dhoma gjumi ku matrimonialja disponon tualet dhe ballkon me vete dhe nje tualet i perbashket. Apartamenti ndodhet ne nje kompleks te ri ne ndertim me 9 kate ndertim dhe nje kat parkim, ne pedonalen me te re te zones. Kompleksi karakterizohet nga nje cilesi e larte ndertimi, hapesira rekreative,planimetri me kubature te rregullt,sistem kapote 8-10cm, dritare me profil alumin dopio xham me mbushje me gaz argan dhe sistem kondicionimi Multisplit. Prona ndodhet ne faze fino/kapote dhe perfundon ne vere 2026. Cmimi 90.000all/m² pagese e menjehereshme si dhe ofrojme mundesi kreditimi. Per nje vizite ne prone kontaktoni 069 626 5555 / 069 999 9955





