Overview
- Updated On:
- September 22, 2022
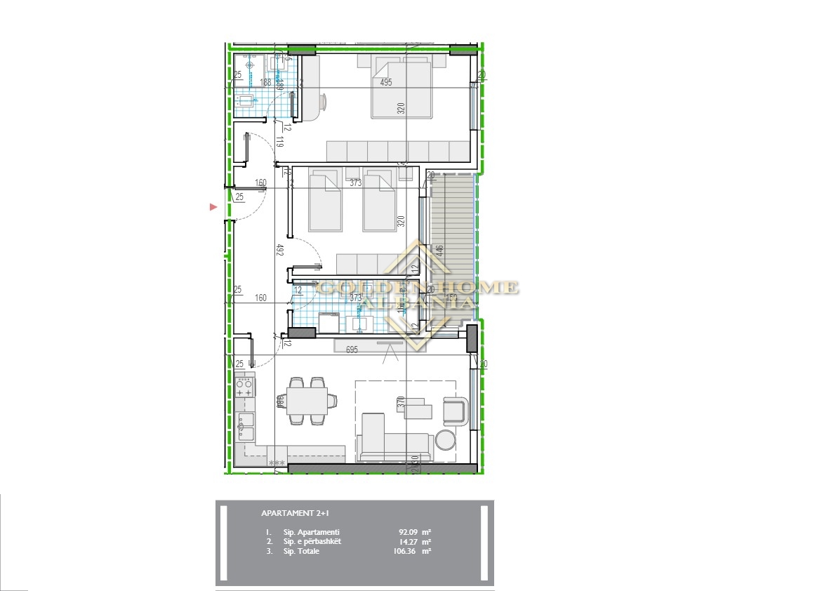
- 2 Dhoma
- 2 Tualete
- 106.36 m2
Pershkrimi
Ekskluzive!! Shitet apartament 2+1+2 ne Living Park Residence, Kamez! Apartamenti ka siperfaqe siperfaqe 106.36m² dhe organizohet nga nje sallon i bollshem se bashku me ambjentin e gatimit, dy dhoma gjumi ku matrimonialja disponon tualet me vete, nje tualet i perbashket dhe nje ballkon. Apartamenti ndodhet ne faze instalimesh elektrike dhe punimet perfundojne ne fillim te 2026. Cmimi 850€/m². Per nje vizite ne prone kontaktoni 069 626 5555 / 069 202 1009.
Adresa
Detajet e Prones
Property Id : 43611
Cmimi: 90.406 € 
Siperfaqja: 106.36 m2
Dhomat total: 3
Dhoma Gjumi: 2
Tualete: 2
ID e Pronës: G1417
          Specifikimet
Other Features
Ballkone
Ne ndertim
Harta
Prona të ngjashme
Apartament 2+1
Shitje
 
Apartament 2+1
Shitje
 
Apartament 2+1
Qera
 




